K.Bucher Immobilien AG Logo

Attraktive Büro- und Gewerbeflächen im Erdgeschoss

Besichtigungen

Herr Herber Christoph Alfons 041 620 44 44

Adresse

Kägiswilerstrasse 46
6060 Sarnen

Distanzen

ÖV 220  m

Autobahn 1700  m

Einkaufsmöglichkeit 220  m

Im Erdgeschoss und 1. Obergeschoss eines modernen Gewerbegebäudes in Sarnen vermieten wir flexibel nutzbare Gewerbeflächen. Die Flächen bieten viel Raum für Ihre Ideen und können individuell nach Ihren Bedürfnissen ausgebaut werden.

Verfügbare Flächen:
Erdgeschoss: Fläche: 790 m² Raumhöhe: 5.60m
Erdgeschoss erhöht: Fläche: 145 m² Raumhöhe: 2.64m
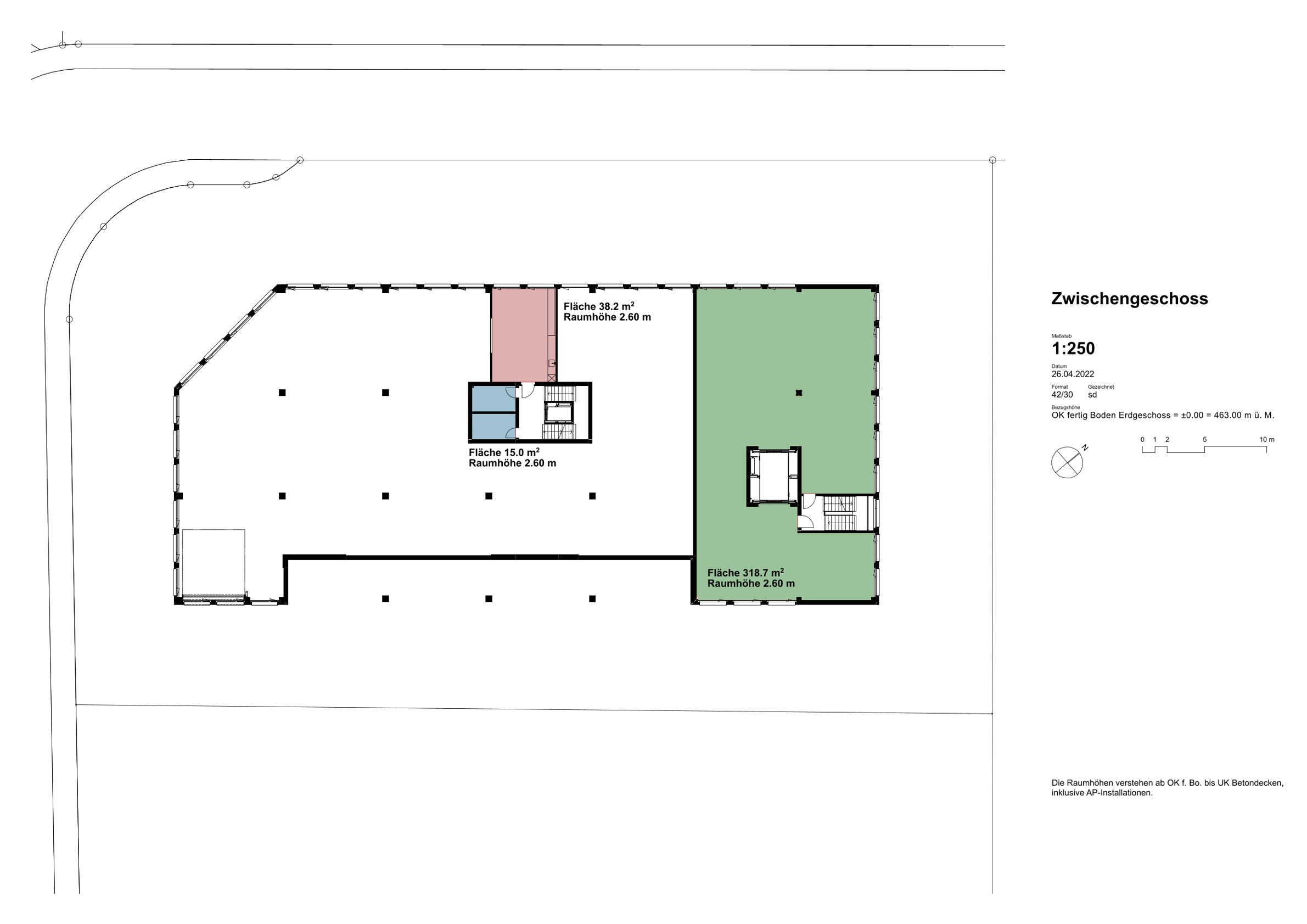
Zwischengeschoss: Fläche: 372 m² Raumhöhe: 2.60m
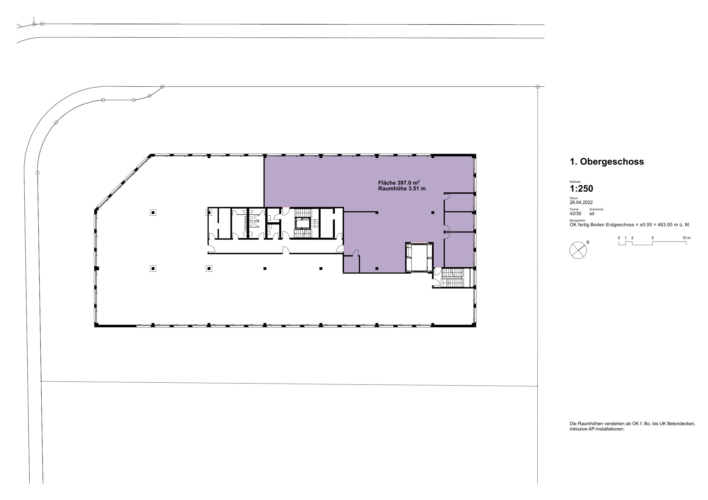
1. Obergeschoss: Fläche: 397 m² Raumhöhe: 3.51m

Mietzins:
CHF 250.00 Rohbaujahresmiete (netto) pro m2

- Flexible Raumgestaltung nach Wunsch
- Gemeinschaftliche WC-Anlagen vorhanden
- Helle, grosszügige Flächen für Gewerbe, Produktion, Industrie
- Gute Erreichbarkeit
- grosser Warenlift vorhanden
- Free Cooling
- grosse Zugangstore im Erdgeschoss

Im 2. Obergeschoss stehen weitere Gewerbeflächen(453.5m² / 114.7m²) zur Verfügung welche sich z.B. als Büro oder Praxisräumlichkeiten eignen.

In der Einstellhalle stehen genügend Parkplätze zur Verfügung, teilweise mit Elektroladestationen.

Der Bahnhof Sarnen Nord erreichen Sie in 15 Minuten zu Fuss und die Bushaltestelle Sarnen Ried in 3 Minuten.

Endecken Sie die Qualitäten dieser Gewerbeflächen bei einer unverbindlichen und persönlichen Besichtigung vor Ort - Sehr gerne erwarten wir Ihre Kontaktaufnahme und beantworten Ihre Fragen.