K.Bucher Immobilien AG Logo

Attraktive Büro- und Gewerbeflächen in Buochs zu vermieten

Besichtigungen

Herr Herber Christoph Alfons 041 620 44 44

Adresse

Fadenbrücke 8
6374 Buochs

Distanzen

ÖV 210  m

Autobahn 1600  m

Attraktive Büro- und Gewerbeflächen in Buochs zu vermieten
Vielseitig nutzbare Gewerbeflächen in Buochs – verfügbar ab sofort

Im 2. und 3. Obergeschoss eines neuen Gewerbegebäudes in Buochs vermieten wir ab sofort attraktive Flächen im Rohbau.
Die Flächen bieten viel Gestaltungsfreiraum und können individuell an Ihre Bedürfnisse angepasst werden – ideal für Büro, Praxis oder andere gewerbliche Nutzungen.

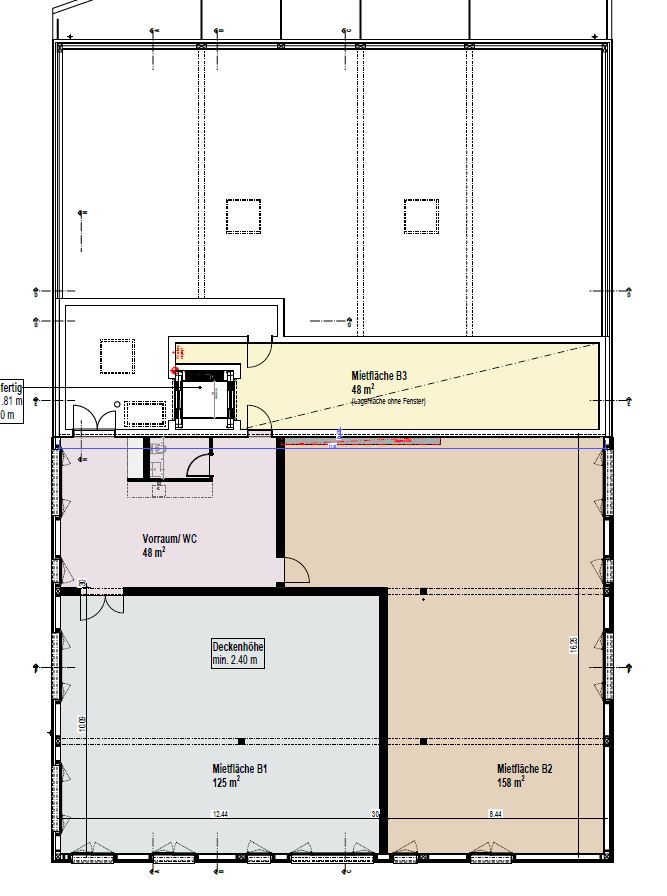
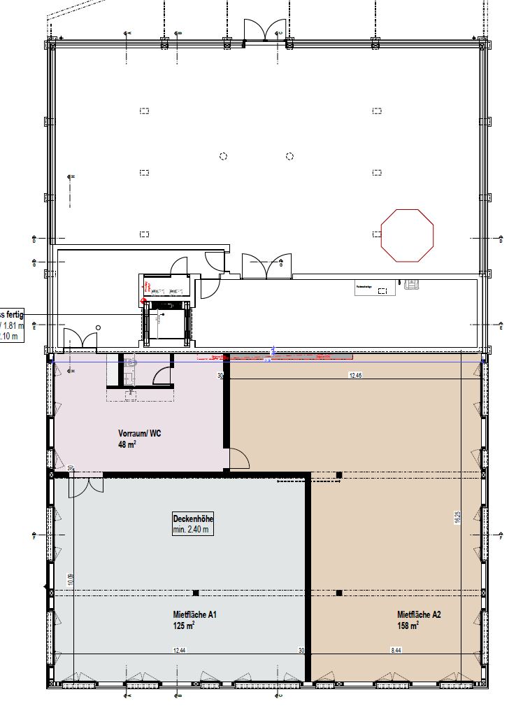
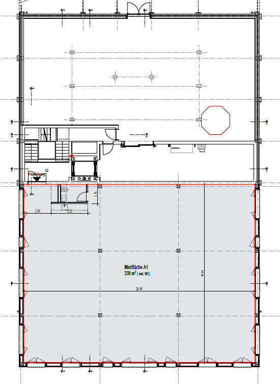
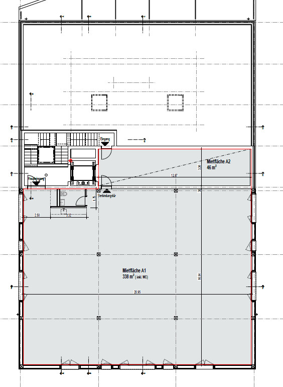
Verfügbare Flächen:

2. Obergeschoss: 338 m² (inkl. WC)
3. Obergeschoss: 338 m² (inkl. WC)

Es gibt auch die Möglichkeit nach Absprache eine kleinere Fläche zu mieten. Mögliche Varianten sind auf den Grundrissplänen ersichtlich.

Mietzins:
CHF 160.00 Rohbaujahresmiete (netto) pro m2

Ihre Vorteile auf einen Blick:
-Flexible Raumaufteilung nach Wunsch
-Helle, grosszügige Flächen
-Geeignet für Büro, Praxis oder Gewerbe
-Modernes Kühlsystem (Free Cooling)
-Gute Erreichbarkeit

Die Bushaltestelle Fadenbrücke ist in nur 3 Gehminuten erreichbar, die Autobahnzufahrt in ca. 2 Fahrminuten.

Haben wir Ihr Interesse geweckt?
Dann freuen wir uns auf Ihre Kontaktaufnahme und stehen für weitere Auskünfte gerne zur Verfügung.