K.Bucher Immobilien AG Logo

Büro- und Gewerberäume mit Schulungsraum, Coworking

Besichtigungen

Herr Herber Christoph Alfons 041 620 44 44

Adresse

Aawasserstrasse 2
6370 Oberdorf

Distanzen

Autobahn 500  m

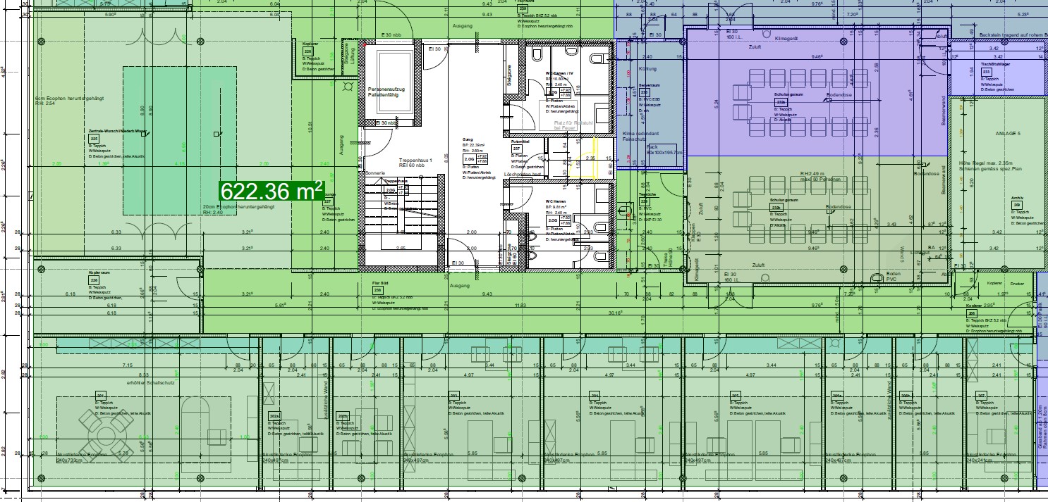
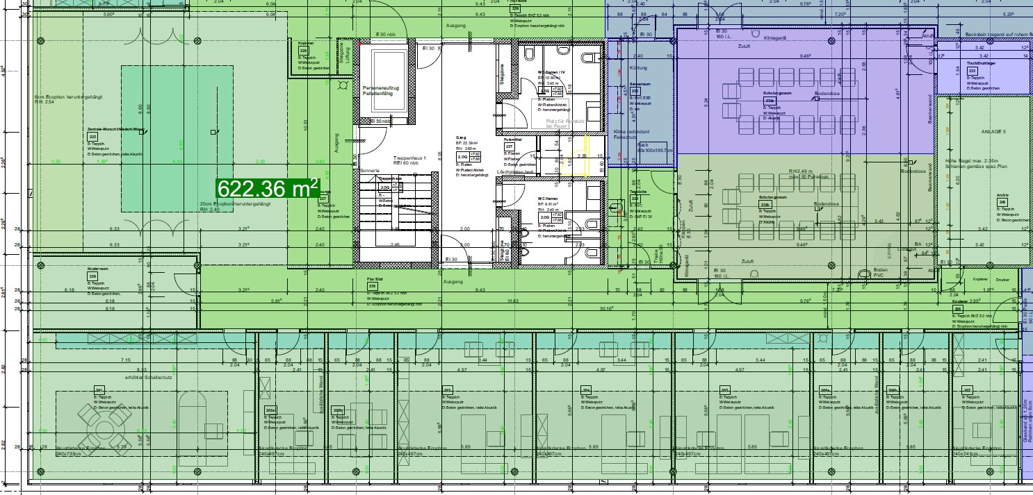
Büro mit Infrastrukturen und Schulungsraum

Im modernen Büro- und Gewerbegebäude 'Aa-Gwärb' an der Aawasserstrasse in Oberdorf, sind nach Vereinbarung hochwertig ausgebaute Büro- und Gewerbefläche im 2. Obergeschoss zu vermieten. Die Räumlichkeiten sind ausgebaut. Ebenfalls vorhanden ist ein Schulungsraum oder Sitzungszimmer mit Beamer.

Es besteht die Möglichkeit Einzelbüros mit Infrastruktur wie Sitzungszimmer / Schulungsraum, Teeküche, etc. zu mieten aber auch inkl. Einrichtung wie Pult etc. Es besteht auch die Möglichkeit einer Bürogemeinschaft. Heute sind wir K. Bucher Immobilien, HEV-Nidwalden, Harmath Treuhand AG und dann evtl. Sie?

Alle Räume sind mit grossen Fenstern ausgestattet. Dadurch gelangt sehr viel Licht ins Innere und verleiht den Räumlichkeiten zusammen mit der integrierten Lüftungsanlage ein angenehmes Arbeitsklima.
Ebenfalls stehen moderne Sanitäre Einrichtungen zur Verfügung (gemeinschaftliche Nutzung).

Lage

Das Büro- und Gewerbegebäude 'Aa-Gwärb' liegt nur wenige Meter neben dem A2-Autobahnanschluss 'Stans-Süd' und an der Hauptstrasse 'Riedenstrasse' in Richtung Engelberg.
Die Bushaltestelle 'Kreuzstrasse' befindet sich ungefähr 5 Minuten Fussmarsch entfernt und stellt so die ÖV-Anbindung sicher. In wenigen Minuten gelangen Sie so per Bus zum Bahnhof der Zentralbahn in Stans und dann weiter in Richtung Engelberg oder Luzern.
Den Flugplatz Buochs erreichen Sie bequem in wenigen Autominuten.

Erschliessung

Die einzelnen Geschosse des Gebäudes sind über das zentral gelegene Treppenhaus und einem grosszügig dimensionierten Personen- und Warenaufzug (13 Personen / 1000 kg) erschlossen.

Ausstattung / Installation

- Sanitäranlagen: Gemeinsame WC-Anlage ausgebaut vorhanden
- Innenausbau: ausgebaut (Böden: robuster Teppich | Wände: Weissputz | Decken: Beton weiss gestrichen und Akustikdeckenelemente)
- Mitbenutzung des mittels Schiebelementen abtrennbaren Sitzungszimmers für max. 50 Personen möglich
- Raumhöhe: lichte Raumhöhe 2.30 - 2.54 m
- Innenwände: Leichtbau
- Raumkonzept: Die Fläche wurde bereits in unterschiedlich grosse Büros aufgeteilt. Kann so übernommen oder im Bedarfsfall angepasst werden (Ausbau zu Lasten des Mieters)
- Elektro- und Multimediainstallationen: komplette Installation vorhanden
- Beschattung: elektrisch bedienbare Storen
- Wärmeabgabe: Radiatoren
- Lift: Personenaufzug (Palettenfähig) für 13 Personen und 1000 kg

Entdecken Sie diese modernen und gut ausgestatteten Büroräumlichkeiten bei einer unverbindlichen und persönlichen Besichtigung direkt vor Ort - Sehr gerne erwarten wir Ihre Kontaktaufnahme und beantworten Ihre Fragen.