K.Bucher Immobilien AG Logo

Moderne Büro- und Gewerberäume mit vielseitigen Nutzungsmöglichkeiten

Kontakt

Stefan Röschl 041 620 44 44

Besichtigungen

Herr Röschl Stefan 041 620 44 44

Adresse

Hauptstrasse 8
6386 Wolfenschiessen

Distanzen

ÖV 260  m

Autobahn 6600  m

Einkaufsmöglichkeit 290  m

Moderne Büro- und Gewerberäume mit vielseitigen Nutzungsmöglichkeiten – verfügbar nach Vereinbarung

Wir vermieten attraktive Gewerberäume im Erdgeschoss an der Hauptstrasse 8 in Wolfenschiessen im Engelberger Tal.

Die Räumlichkeiten eignen sich für verschiedene Unternehmensarten, von Dienstleistungsunternehmen über Agenturen bis hin zu Start-ups.

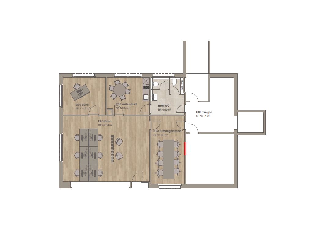
Die Gewerbefläche (103 m²) kann flexibel aufgeteilt werden und ist somit für verschiedene Nutzungsbedürfnisse und Konzepte geeignet – sei es als Büro, Ladenlokal, Ausstellungs- oder Behandlungsräume.

Sie ist aufgeteilt in fünf Räume: einen grosszügigen, Raum mit Schaufenster, ein Büro, einen Aufenthaltsraum, ein WC und einen zusätzlichen Raum, der beispielsweise als Sitzungszimmer genutzt werden kann.

Zusätzlich besteht die Möglichkeit, einen Lager- oder Archivraum (38 m²) im Untergeschoss zu mieten. Dieser ist durch einen Warenlift erschlossen.

Im Mietzins sind drei Parkplätze vor dem Eingang enthalten. Zusätzliche Parkplätze können auf der gegenüberliegenden Strassenseite zum Preis von 60 CHF pro Monat dazu gemietet werden.

Ihre Vorteile auf einen Blick:
- gute Sichtbarkeit mit Möglichkeit zur Aussenwerbung
- moderne, helle Räume im Erdgeschoss
- zentrale Lage in der Ortsmitte
- grosse Schaufensterfläche
- flexible Raumaufteilung nach Wunsch
- Küchenanschlüsse vorhanden
- WC mit zwei Toiletten

Bitte beachten Sie:
Die gezeigten Bilder sind Referenzvisualisierungen. Der tatsächliche Innenausbau ist noch offen und kann in Absprache mit der zukünftigen Mieterschaft individuell gestaltet werden. Dadurch haben Sie die Möglichkeit, die Fläche nach Ihren Bedürfnissen und Ihrem Nutzungskonzept auszubauen.

Haben wir Ihr Interesse geweckt?
Dann freuen wir uns auf Ihre Kontaktaufnahme und stehen für weitere Auskünfte gerne zur Verfügung.