Attraktive Büro- und Gewerbeflächen in Sarnen zu vermieten

Referenz: 6059

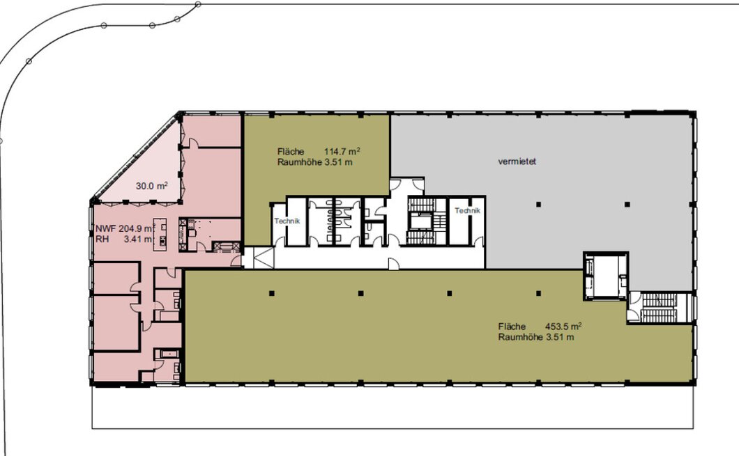
Im 2. Obergeschoss eines modernen Gewerbegebäudes in Sarnen vermieten wir flexibel nutzbare Gewerbeflächen im Rohbauzustand. Die Flächen bieten viel Raum für Ihre Ideen und können individuell nach Ihren Bedürfnissen ausgebaut werden – ob als Büro, Praxis oder für gewerbliche Zwecke.

Verfügbare Flächen:
2. Obergeschoss: 114.7 m²
2. Obergeschoss: 453.5 m²

Mietzins:
CHF 160.00 Rohbaujahresmiete (netto) pro m2

- Flexible Raumgestaltung nach Wunsch
- Gemeinschaftliche WC-Anlagen vorhanden
- Helle, grosszügige Flächen für Büro, Praxis oder Gewerbe
- Gute Erreichbarkeit
- Raumhöhe: 3.51 m
- Bodenbelastbarkeit: 750 kg pro m2
- grosser Warenlift vorhanden
- Free Cooling

Auch im Erdgeschoss und 1. Obergeschoss stehen weitere Gewerbeflächen zur Verfügung, teilweise mit Raumhöhen bis zu 5.60 m – ideal für Produktion, Industrie oder Lager.
In der Einstellhalle stehen genügend Parkplätze zur Verfügung, teilweise mit Elektroladestationen.

Der Bahnhof Sarnen Nord erreichen Sie in 15 Minuten zu Fuss und die Bushaltestelle Sarnen Ried in 3 Minuten.

Endecken Sie die Qualitäten dieser Gewerbeflächen bei einer unverbindlichen und persönlichen Besichtigung vor Ort - Sehr gerne erwarten wir Ihre Kontaktaufnahme und beantworten Ihre Fragen.

Besichtigungen

Herr Herber Christoph Alfons 041 620 44 44

Adresse

Kägiswilerstrasse 46
6060 Sarnen

Distanzen

ÖV 220  m

Autobahn 1700  m

Einkaufsmöglichkeit 220  m